Kitűnő helyen, kétszobás, otthonos lakás

1488 Nyomtatás Ajánlás Facebook

Befektetők, otthonkeresők figyelem!
Salgótarjánban, a Gorkij lakótelepen eladó egy otthonos, kétszobás, második emeleti lakás.
Ez az ingatlan kitűnő helyen van. Párszáz méteren belül van a TESCO áruház, a Lidl áruház, az Interspar áruház, gyógyszertár, orvosi rendelő, iskola, óvoda, autószervíz, valamint épül az új bevásárlóudvar is. Akár budapesti munkahellyel rendelkezőknek is kitűnő lehetőség, mert a távolsági buszmegálló szinte az épület mellett, mindössze hetven méterre van a bejárattól. A menetrend szerinti járatok óránként mennek Budapestre, illetve jönnek onnan Salgótarjánba. Az autópálya minőségű 21-es útnak, és az M3-as autópályának köszönhetően, Budapest egy óra húsz perc alatt elérhető, a havi bérlet költsége nagyon kedvező, aminek általában a munkáltató tetemes részét meg is téríti.
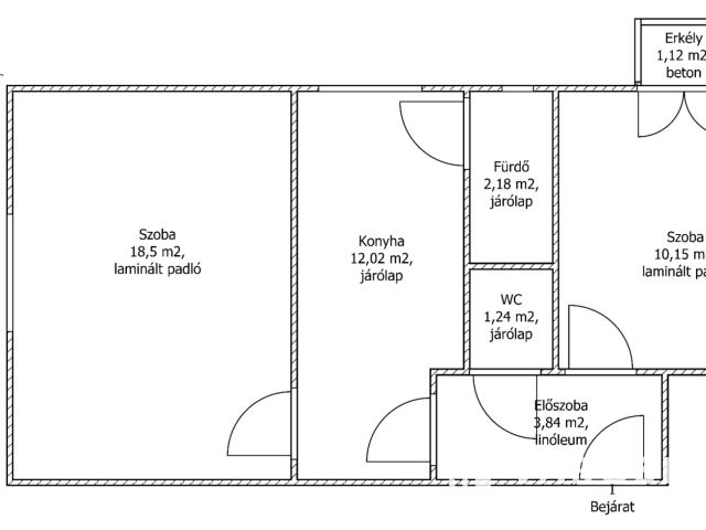
A lakás gázkonvektoros fűtésű, a melegvizet átfolyós gázüzemű vízmelegítő biztosítja. Az ablakok redőnyözött, korszerű műanyag nyílászárók. A konyha nagy, nem csak a főzéshez, de az étkezéshez is elég helyet biztosít. A két szoba egymástól távol helyezkedik el, ezért a családtagok egymás zavarása nélkül tudnak a kedvenc hobbijukkal foglalkozni, ha úgy akarják. A lakáshoz tartozik egy erkély, és egy saját pincerekesz is. A fürdő és a wc külön helyiségben található. A lakás 2015-ben fel lett újítva, ekkor történtek meg – a bejárati ajtó kivételével – a nyílászáró cserék, és a padlóburkolatok cseréje, valamint a fűtőberendezések ellenőrzése, és szükség szerinti cseréje. Ez az otthonosan berendezett lakás, befektetőknek is ideális, mert nem csak nagyon jó áron megszerezhető, de további költségek nélkül, akár azonnal is kiadható, mert teljesen felszerelt, és bútorozott. A lakás tehermentes, kifizetése után rövid időn belül birtokba vehető.
További információkért, képekért hívjon a +36 70 423 1304-es telefonszámon!

Butkai Ottó
PRÉMIUM

Butkai Ottó

Ingatlanértékesítő, Karrierigazgató
Salgótarján
+36 (70) 423 1304
Észrevétel a hirdetéssel kapcsolatban
Egy ingatlanos naplója