Kiadó természetközeli családi ház

1495 Nyomtatás Ajánlás Facebook

Kiadó ~238,00 m2 alapterületű családi ház Hódmezővásárhelyen a Nyikos utcában.
A 2005.- ben épült épület egyedi megoldásokkal és gazdaságos fenntarthatósággal várja új lakóit.
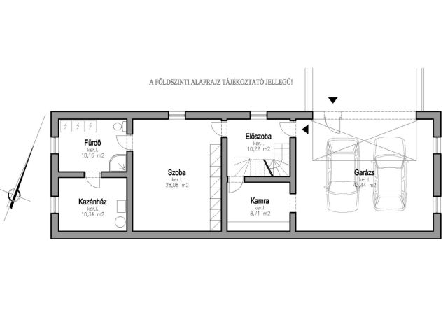
A telek tereprendezése lehetővé teszi, hogy az utcafrontról a garázs és az ebből nyíló előszoba (lépcsőház), klub-szoba, fürdő, kamra és kazán helyiségek közelíthetőek meg. Az „emeleti” lakótér kültéri és beltéri lépcsővel is elérhető. (lásd.: alaprajzok)
Hőszigetelt, szúnyoghálóval ellátott, egyedi gyártású fa kültéri nyílászáróknak köszönhetően világos, elegáns lakóterek kapcsolódnak egymáshoz, ebben a sajátos dinamikájú házban.
Tágas Nappali és Étkező helyiségben helyett kapott egy látvány-kandalló, innen nyílik a beépített teljesen felszerelt Konyha és a Dolgozó-szoba. Ezen a szinten lévő három hálószobához saját fürdőszoba tartozik. A Téli-kert a Dolgozó-szobából és a teraszról is megközelíthető. Az ~58,00 m2 fedett, burkolt terasz - kültéri sütögetővel - növeli a lakótér kihasználhatóságát. A kétállásos garázs ~ 44,00 m2. Központi fűtést egy Buderus Logano G 124 kazán -csökkentett káros-anyag kibocsátású, teljesen automatikus üzemű -biztosítja.
Az épülete villamos energia ellátását 30 napelem támogatja.
Az épület riasztórendszerrel és kamerával védett.
Az ingatlan a Kása erdő közvetlen közelébe helyezkedik el, szép környezetben, kiépített túraútvonalak pár perces sétával elérhetőek az erdőben. Autóval szeged 25 perc alatt elérhető, Szegedi BYD-gyár ugyancsak 25 perc autóval.Hódmezővásárhely belváros 6 perc autóval.
Elsősorban hosszú távra, teljes bútorzattal, nem dohányzó lakóknak szeretnénk kiadni a házat, 2 havi kaució megfizetése szerződéskötéskor szükséges. A felmerülő rezsi költségek a bérlőt terhelik.

Néhány információ az ingatlanról, ami segíthet a döntésben:
- Telek: 1394 m2
- Hasznos lakótér: ~238,00 m2
- Földszint: ~ 67,50m2 + ~43,40 m2 Garázs
- Emelet: ~170,30 m2 + ~18,00 Télikert + ~58,50 m2 Fedett terasz
- Nappali és Étkező: ~55,00m2
- Konyha: ~15,00 m2
- Dolgozó-Szoba: ~17,00 m2
- Szobák: ~15,00 m2; ~14,00 m2; ~12,00 m2

Az ingatlannal kapcsolatos kérdéseivel várom hívását, a hét bármely napján.

For rent ~238.00 m2 family house in Hódmezővásárhely on Nyikos Street.
The building built in 2005 awaits its new residents with unique solutions and economic sustainability.
The “upper” living space is accessible by both outdoor and indoor stairs. (see: floor plans)
Thanks to the insulated, mosquito-netted, custom-made wooden exterior doors and windows, bright, elegant living spaces are connected to each other in this uniquely dynamic house.
The ~58.00 m2 covered, paved terrace - with an outdoor barbecue - increases the usability of the living space. The two-car garage is ~44.00 m2. Central heating is provided by a Buderus Logano G 124 boiler - with reduced harmful emissions, fully automatic operation.
The building's electricity supply is supported by 30 solar panels.
The building is protected by an alarm system and a camera.
The property is located in the immediate vicinity of the Kása forest, in a beautiful environment, with established hiking trails within a few minutes' walk in the forest. Szeged is 25 minutes by car, the BYD factory in Szeged is also 25 minutes by car. The city center of Hódmezővásárhely is 6 minutes by car.
We would like to rent the house primarily for the long term, fully furnished, to non-smoking residents, a 2-month deposit is required upon signing the contract. The tenant is responsible for the overhead costs.

Some information about the property that may help you make a decision:
- Plot: 1394 m2
- Useful living space: ~238.00 m2
- Ground floor: ~ 67.50 m2 + ~43.40 m2 Garage
- First floor: ~170.30 m2 + ~18.00 Winter Garden + ~58.50 m2 Covered terrace
- Living room and dining room: ~55.00 m2
- Kitchen: ~15.00 m2
- Study room: ~17.00 m2
- Rooms: ~15.00 m2; ~14.00 m2; ~12.00 m2
Please send your inquiries in English to the following email address: saraine.agnes@varos.hu

Sárai-Kovács Ágnes
PRÉMIUM

Sárai-Kovács Ágnes

5 éve a Városi Ingatlaniroda tagja
Ingatlanértékesítő
Hódmezővásárhely
+36 (30) 742 5020
Észrevétel a hirdetéssel kapcsolatban
Egy ingatlanos naplója