Eladó egy szintes 197 nm-es, összkomfortos családi ház!

5003 Nyomtatás Ajánlás Facebook

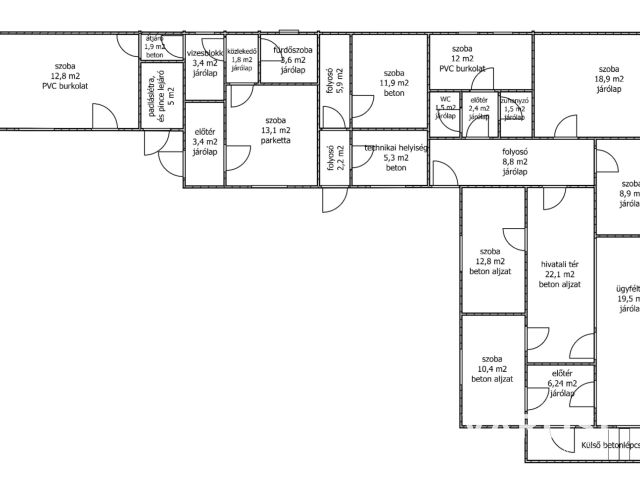
Cereden eladó egy 197 m2 nagy alapterületű, egy szintes családi ház.
A ház kiváló állapotú. falakkal, jelentős részben műanyag ablakokkal rendelkezik.
A tető cseréppel fedett, ácsolata hibátlan.
Az ingatlan korábban hivatalként, műszaki állomásként, és szolgálati lakásként működött, ezért több részre osztott.
A belső burkolatok cserélendők, felújítandók.
Az épület jól variálható belső terekkel rendelkezik, csak a külső főfalai teherhordó falak, ezért belül tetszés szerint átalakítható. Egyaránt kialakítható belőle nagy villalakás, panzió, apartmanház, vagy vadászház.
Összközműves, gázkazános központi fűtéssel rendelkezik.
Két száraz pince található alatta, 28, és 14 m2-es alapterületűek.
űAz udvarra széles kapubejárón keresztül lehet behajtani, több autó tárolására, vagy nagy garázs építésére is megfelelő.
A ház mellett egy elbontott melléképület jó állapotú betonalapjára pillanatok alatt telepíthető egy könnyűszerkezetes építmény, fedett grillező, vagy garázs is.
Nézze meg, érdemes!
Hívjon a +36 70 423 1304-es telefonszámon!

Cered Nógrád vármegye egyik gyöngyszeme. Közvetlen a Szlovák határon fekszik, határátkelőjén, akár gyalogosan is át lehet menni a Szlovák oldalon lévő Tajti településre.
Salgótarjánból 20 km-es kanyargós, lélegzetelállító panorámájú út vezet a faluba.
A községtől nyugatra, a Medves hegység lábánál ered a községet kelet-nyugat irányba átszelő Tarna. A környező hegyekről a Medves és Szilvás-kő 620 m csúcsán kívül az év nagy részében láthatók a Mátra, a Bükk és a Tátra csúcsai is. Ma már természetvédelmi terület, a Medves hegyei, erdői, változatos geológiai képződménnyei, és az itt élő ritka növény- és állatfajok miatt. A Pípó-pataki tavak jelentős térségi értékek, ahol horgászati lehetőség áll az idelátogatók részére.
Évente egy alkalommal nemzetközi művésztábor várja ide az alkotókat. A faluban két festőművész is él. Működik palóc hagyományőrző asszonykórus, és népi hímző is fellelhető a településen.
Óvoda, iskola, körzeti háziorvosi, védőnői, fogorvosi ellátás, gyógyszertár is van a faluban.
Mindössze 20 km-re található Salgótarjánban a Szent Lázár Megyei Kórház- és Rendelőintézet, mely súlyponti kórházként látja el ezt a területet is.
A községben a közvilágítás, a vezetékes ivóvíz- és szennyvízhálózat, a vezetékes földgázhálózat, a vezetékes telefon és szélessávú internethálózat kiépítése is megtörtént. Szélessávú mobil internet szolgáltatás is elérhető a település egész területén. Az önkormányzati utak szilárd útburkolattal ellátottak. A települési szilárd hulladék hetenkénti elszállítása megoldott, és a szelektív hulladékgyűjtés is biztosított.

Butkai Ottó
PRÉMIUM

Butkai Ottó

Ingatlanértékesítő, Karrierigazgató
Salgótarján
+36 (70) 423 1304
Észrevétel a hirdetéssel kapcsolatban
Egy ingatlanos naplója